Nemovitosti

Prodej, byt 3+1, 64 m2, ul. Puklicova, České Budějovice Prodej

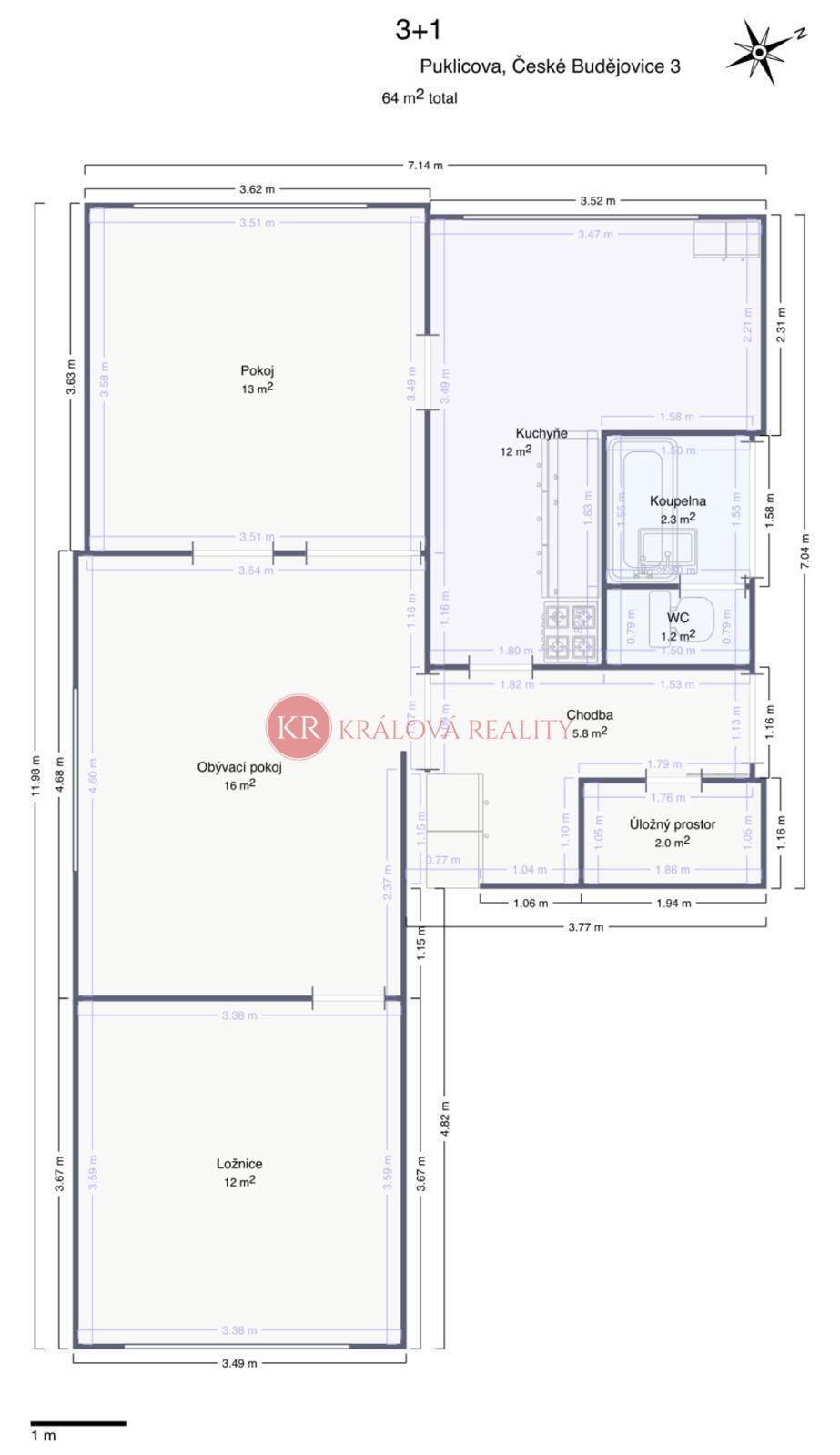
Prodej, byt 3+1, 64 m2, ul. Puklicova, České Budějovice

4 300 000,-

Popis nemovitosti

Prodej družstevního bytu 3+1 v ul. Puklicova v Českých Budějovicích. Byt má rozlohu 64 m2 a nachází se v 5. patře s výtahem. Měsíční poplatky činí 4800,- Kč. Byt je v původním udržovaném stavu a sestává z předsíně, kuchyně, koupelny s vanou, samostatného WC a 3 obytných pokojů. K bytu náleží sklep. Docházková vzdálenost od OC Igy 3 minuty, do centra cca 10 minut. V dosahu veškerá občanská vybavenost. Financování na družstevní byt zajišťujeme.

Bezbariérový

Ne

Datum poslední úpravy

5.1.2026

Subtyp nemovitosti

3+1

Vydaný certifikát PENB

C - Úsporná

ID nemovitosti

B711

Konstrukce

Panelová

Město

České Budějovice

Městská část

České Budějovice 3

Nemovitost přidána dne

26.2.2025

Operace

Prodej

Plocha užitná

64 m2

Stav objektu

Dobrý

Typ certifikátu PENB

č. 264/2020 Sb.

Typ nemovitosti

Byt

Ulice

Puklicova

Umístění objektu

Centrum obce

Zpět na Nemovitosti